Exploring the University of York campus the first point of interest which we encountered was the Water Tower.
Siward’s Howe, sometimes written Siwards How and also known as Heslington Hill or Bunny Hill is a terminal moraine located to the south-east of the city of York.
The howe is situated north west of the Morrell Library building of the University of York. The southern side of the howe is part of Alcuin College of the University of York.
Its imposing water tower is visible from many parts of the nearby suburbs of Tang Hall and Osbaldwick.
Siward’s Howe is named for Siward, Earl of Northumbria, the 11th century Danish warrior.
Siward died at York during 1055 and is rumoured to have been buried beneath the tumuli at the wooded summit.

The Death of Earl Siward 1861 by James Smetham
Built in 1955 the water tower contained one million gallons of water – the largest in England at the time.
It’s still operational, and provides water to Dunnington and Elvington.
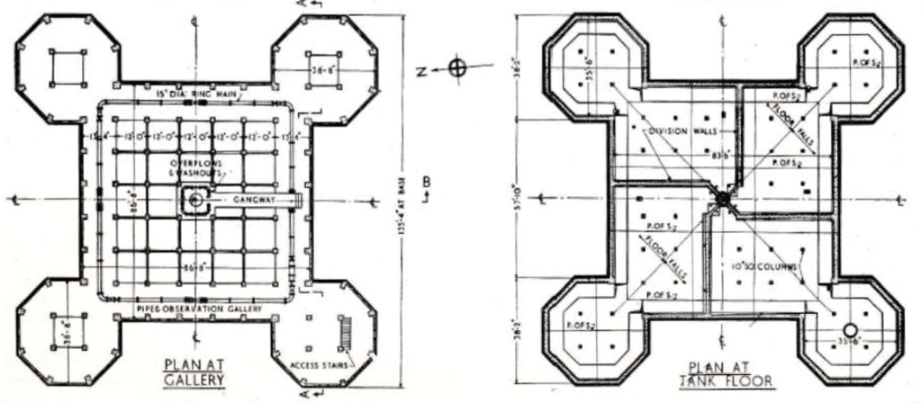
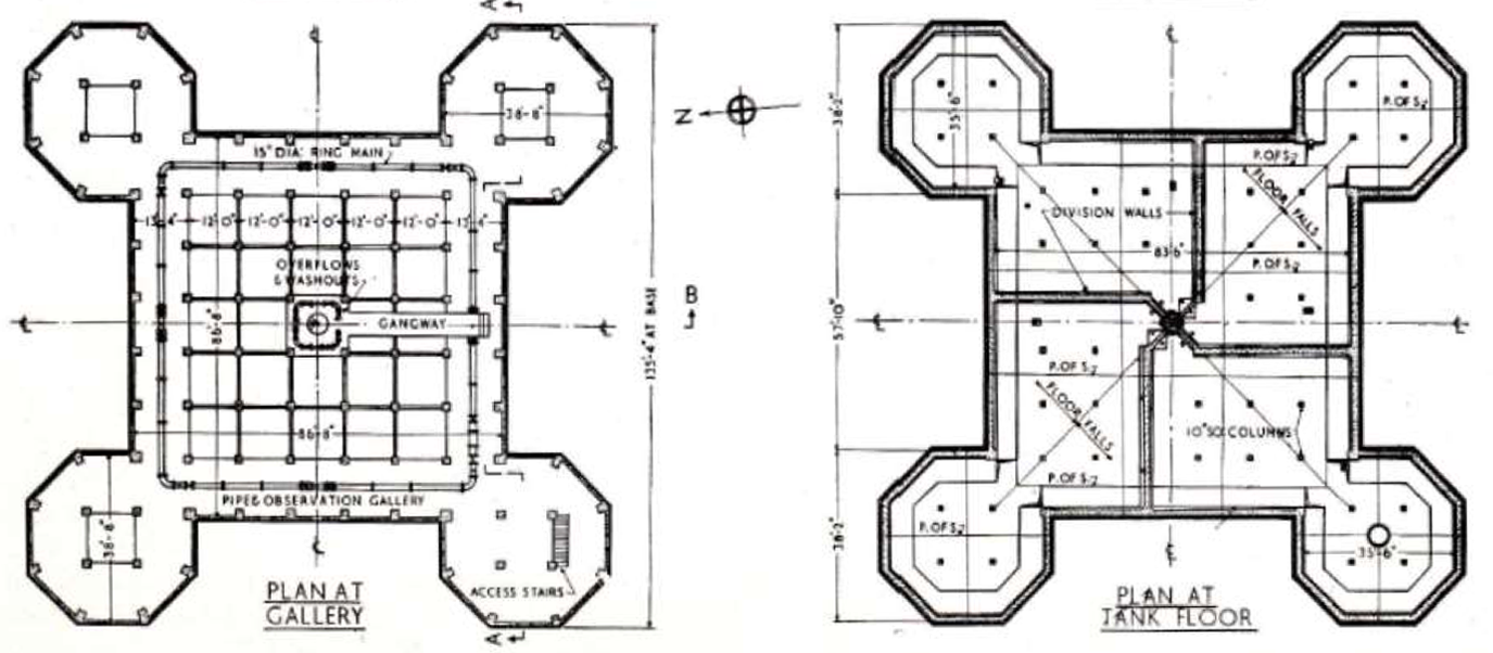
The shape of the tank and supporting structure on plan takes the form of a large central square portion, each corner of which is eclipsed by an octagonal tower seven faces of which are revealed.
The central tank is fifteen feet deep and is eighty three feet and six inches square.















The University Chemistry Department water tower was constructed in 1965 and demolished in 2002 due to deterioration in its concrete construction.

Cconstruction in March 1965. Photo: © Borthwick Institute for Archives

The Tower comprised of an inverted twenty one metre diameter conical tank which was made up of thirty two pre cast concrete petals each weighing eight and a half tonnes. The Overall Height of the Tower was approximately twenty eight metres, the central core stem being two point three metres diameter .

Photo Steve Collins 2011

Photo RIBA pix
The landmark, built in 1965 to hold fifty thousand gallons of water for the chemistry department, is crumbling away due to carbonation and has been covered in a protective net to stop pieces hitting passers-by.
Bill Burns, building maintenance surveyor for the university, said many concrete structures of the 1960s and 1970s were suffering the same fate as the speed of building often meant salt got into the aggregate used in the concrete mix.
There was a degree of uncertainty surrounding the demolition of the pre-cast structure of the Tower as it had been subject to deterioration since erection. At Tender stage, the thirty two petals forming the bowl of the water tank were described as each individually being restrained by wire ropes to the central core. Upon opening up the works, it was found that the stated thirty two restraining Ropes had only been used during the construction of the bowl and had been removed, therefore the petals of the tank were gaining support from the ring beams.

