Ellen Wilkinson Humanities Building

Second time around, following my post in 2019.

A terminal halt on the Campus Capers walk.

Taking a walk around town on an overcast and intermittently showery Friday, we’re all here again.

Sat at home on an overcast and intermittently showery Monday, I took a walk around online archives.

1962 to 1963 Photos: Local Image Archive

The inner courtyard was originally paved, subsequently grassed over.

The lack of sunlight has resulted in the grass becoming both waterlogged and moss-bound.

As a former TMBC maintenance gardener I recommend raking out, aeration and a top dressing of light river sand as a remedy.

Ribapix 1964

The William Mitchell concrete panels are of a modular design, rotated to form distinct groups of horizontal and vertical rhythms. A number of the buildings elevations are clad in linear, diagonal and vertical forms, though the majority are curvilinear and organic.

Local Image Collection 1972

The Ellen Wilkinson building, home to Education and Communication, is one of the few buildings on campus named after a woman. She gained the nickname of ‘Red Ellen’ in her political career, due to her socialist politics and vibrant red hair colour.

Wilkinson was a successful Labour party politician and feminist activist, and a passionate and bold personality in the Houses of Parliament. She was made Minister of Education under Clement Atlee’s government, making her the second woman to ever get a role in the British cabinet. She was brought up and educated in Manchester, making her legacy on the Manchester campus even more significant.

Mancunion

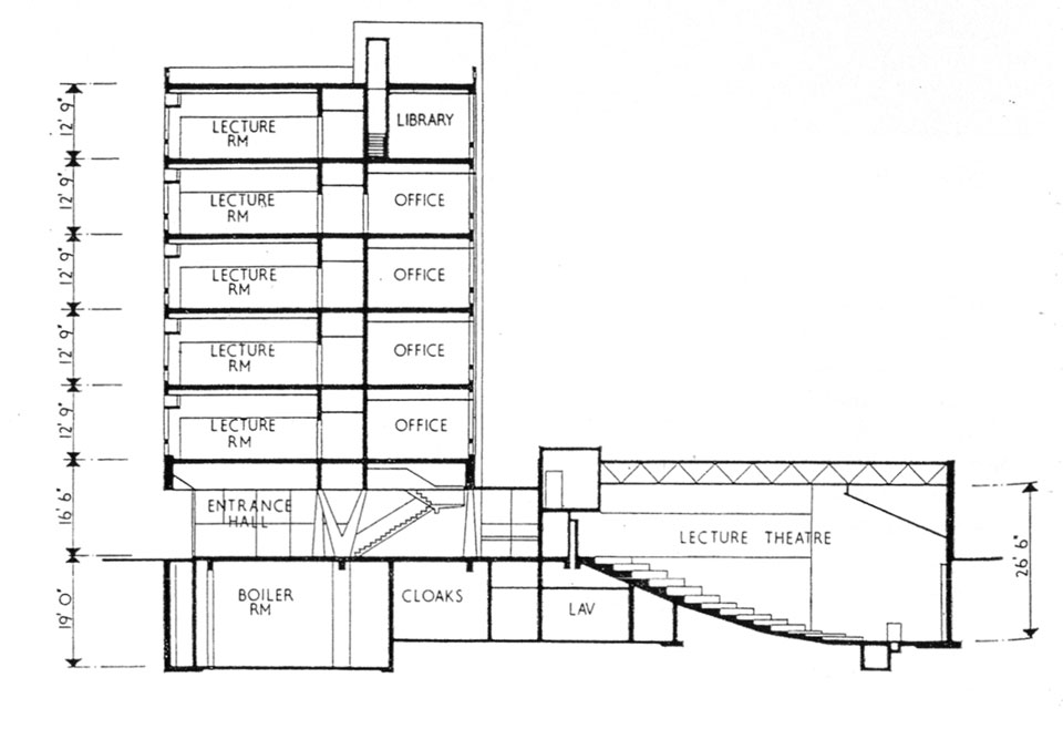
Ellen Wilkinson is a large sized building with three blocks. There are six floors in C Block, five floors in B Block and seven floors in A Block.

There are three lifts and six main staircases within the building.

The floors are signed as Ground, 1, 2, 3, 4, 5 and 6. This is slightly different inside the lifts where control buttons are marked as 0 instead of Ground.

There are link passages from A and B Block to C Block on levels Ground, 1 and 3.

The building was the work of George GrenvilleGG’ Baines and Building Design Partnership.

This scheme pre-dates Wilson Womersley’s appointment as masterplanners for the Education Precinct but exists harmoniously with the later series of buildings. This is most likely due to the method of development before any ‘grand concept’. The incremental expansion of the University, following WWII, was largely dictated by the progress of compulsory purchase orders; this group was no exception. At the planning stages, the lack of a masterplan led to organising the wings of the buildings in an open, orthogonal arrangement. This would allow expansion in a number of directions, according to the next available site in ‘the dynamic situation’. The result was the creation of a small courtyard flanked by two five-storey blocks and a two-storey structure. All three buildings use the same pink-grey concrete. The plastic qualities of concrete were explored in both cladding and structural panels and the textural qualities exposed in the bush hammered columns, to reveal the Derbyshire gravel aggregate. The sculpted and moulded panels on the two-storey block and on the gable ends of the larger blocks were designed in collaboration with William Mitchell. The only other materials in the external envelope were the windows of variously clear and tinted glass. The window modules were set out against a basic geometry in three standard patterns and applied across the façade. This resulted in a clever interplay of vertical and horizontal expression. Phase II, a seven-storey teaching block, was not as refined in its details.

Mainstream Modern

if you have a moment to spare, why not ascend and descend the spiral stairway.

The seating area is almost intact.

This trio of abstract concrete forms, a B&Q Barbara Hepworth, has defied attribution, I adore it.

Similar curved panels have also been used at The Bower – Old Street London.

Roscoe Building

Local Image Collection 1964

The Roscoe Building is to the University of Manchester what the Renold Building was to UMIST; its purpose was the unification of disparate lecture rooms into one building. In this instance it was a central hub for the Faculty of Science. Both buildings are by Cruickshank and Seward and share traits, though the Renold has arguably more flare. In the Roscoe Building the ground floor houses the smaller of the two main lecture theatres, the larger is an appendage to the main building, but both are accessed from the main foyer. As one ascends, the five upper floors are served by a central corridor flanked by smaller offices and laboratories on one side and larger flexible teaching and seminar rooms to the other. The glazed stairwell is expressed as a separate element.

The appraisal of the scheme in the AJ Building Study made claim that, ‘aesthetically the relationship of this staircase with the main tower is scarcely resolved, but the design has achieved the aim of making this an exciting staircase to use’.

This was the aim of the architect – if all the seminar rooms and lecture theatres emptied at the same time, there was not enough capacity in the two lifts to move everyone. The climb up the stairs is rewarded with a good view of the city centre, a photograph of which was illustrated in the same pages. The clear expression of the component parts of this building is a functional response to the demands, but also the part of the formal language developed through Cruickshank & Seward’s practice. Strong volumetric forms became something of a motif in the work of both John Seward and Arthur Gibbon.

Mainstream Modern

The open entrance area has subsequently been compromised.

Photo: Richard Brook

Performance Electrical Limited was employed to carry out the full electrical refurbishment to the new reception at the University of Manchester’s Roscoe Building on behalf of Armitage Construction.

In common with the Renold Building the Roscoe has an elegant glazed staircase.

So I walked it up and down.

Tram Trip To Altrincham

The Trams

Cornbrook

Turn left out of the station, under the track and right onto Chester Road.

426 Chester Rd Old Trafford Stretford Manchester M16 9HD

The Veno building, was once a pharmaceutical company founded by William Henry Veno. He established a company in the US before returning to Britain and founded the Veno drug Company in Manchester in 1898. In 1925 the company was sold to Beecham Estate and Pills Ltd. In the 60s the building was under the name Progress House and was home to the Co-Operative Press Limited, later to become Trafford Press.

Derelict Places

The front elevation was originally in red brick, with a later faience facade applied.

Mr Veno was also responsible for Germolene.

Continue along Chester Road.

Westpoint 501 Chester Rd Old Trafford Stretford M16 9HU

Located in the heart of Trafford, Westpoint provides residents with a modern and stylish living experience, with views over Manchester United’s football ground and the city centre. Featuring an on-site gym, co-workspaces and a residents’ lounge, Westpoint is one of our most popular buildings and utilises energy-efficient technologies that provide a sustainable living experience.

Trafford Bar

You have reached the next station on foot – rather than retreating to Cornbrook.

Turn left into Seymour Grove.

Paragon House 48 Seymour Grove Old Trafford Stretford M16 0YH

Paragon House is located in the heart of the Trafford Civic Quarter which benefits from a 5 minute drive into the centre of Manchester and only 3 minutes away from Trafford Bar Metrolink station. The Paragon House scheme involve the conversion and full scale refurbishment of an existing office building to create 115 one and two bed apartments.

Back to the station.

Old Trafford

Oakland House 76 Talbot Rd Old Trafford London Stretford M16 0PQ

Oakland House is a landmark building providing high quality office space at the heart of Old Trafford. The property has an impressive entrance and reception area which includes brand new signage and contemporary seating, along with recently refurbished toilets and common areas throughout. The building also benefits from an onsite multi storey car park at the rear to provide an excellent car parking ratio as well as an onsite café.

97 Talbot Road former British Gas HQ originally developed for Norweb in the 1980s.

The sitefeatures a two-storey 5,730 sq ft building, making it ideal as a training centre, as well as a separate storage/workshop facility.

A recent refurbishment upgraded the accommodation to provide excellent floor heights and communication infrastructure, collaborative working areas, a staff canteen, cycle stores, showers and a biomass boiler with back-up generator to ensure a constant energy supply in the event of a power loss.

Kinetic Apartments 92 Talbot Rd Old Trafford Stretford M16 0GS

We identified a long abandoned office building with a perfectly located home on Talbot Road, close to Old Trafford Metrolink, and just minutes from the City Centre. Surrounded by celebrated suburbs, our development story in Trafford was born.

Trafford Town Hall Talbot Rd Old Trafford M32 0TH

Built 1933 with 1983 extension, designed by Bradshaw Gass & Hope of Bolton and built by the main contractor Edwin Marshall & Sons Ltd. Built of red Ruabon brick in Flemish bond on a steel frame, with gritstone dressings, and a mansard roof with slate on the lower part and plastic above. It has 2 storeys plus attic floor and basement, and is set in landscaped grounds with a sunken garden to the west. The 1983 extension is not of interest.

Grade II Listed

Duckworth House Bruntwood Works Lancastrian Office Centre Talbot Rd M32 0FP

Beautiful views across the Lancashire Cricket County Club and an exclusive roof garden promotes wellbeing and calm, brightening every day.

Located on Talbot Road, Lancastrian is a convenient 10-minute drive from Manchester and Salford via Chester Road. On-site parking is available for you and your visitors, and the Old Traff ord tram stop is less than half a mile away.

Electrical Sub Station Longford Road/Chester Road

Stretford Essoldo junction of Edge Lane and Chester Road.

Keep walking down Chester Road.

The Longford Cinema was opened on 12th October 1936. Designed by Henry F Elder of Roberts, Wood and Elder of Manchester, it was operated by the Jackson & Newport Ltd. chain.

It was taken over by the Newcastle based Essoldo Chain in August 1950, and renamed Essoldo. It was closed in September 1965 and was converted into an Essoldo Bingo Club, later becoming a Top Rank Bingo Club.

This closed in the 1990’s.

A resource for those wishing to know about the building.

Grade II Listed 28th March 1994.

Stretford Post Office 1931 – Architect: Charles P Wilkinson

Stretford Arndale

Stretford Mall has been at the heart of the town. Opened in 1969, it replaced the traditional shopping district centred around the former King Street. At the time of its opening, it was the sixth largest indoor shopping mall in the country. 

Stretford Mall, or the Arndale as it was known at the time, was opened six years ahead of the Manchester city centre location, and was the sixth biggest shopping mall in the country at the time.

Over the years the story that Mohammad Ali opened the centre has been ingrained into the fabric of the community, although he actually visited to promote malt-based bedtime drink Ovaltine!

The masterplan proposes to reconnect the town centre. To integrate residents, parks, public transport and the canal with the existing shopping centre for a safer, cleaner and greener Stretford. A series of smaller projects will put this into action. Re-invigorating the 1969 shopping centre and high street, greening the centre, opening up routes along the canal and delivering up to 800 new homes.

FCB Studios

Stretford House Chapel Ln Stretford Manchester M32 9AZ

Completed in 1968 at twenty three floors, Stretford House on Chester Road was for many years one of Manchester’s tallest residential buildings. The architects Cruikshank and Seward are also known for some of the city’s ‘s best twentieth century architecture, including the Renold Building at UMIST.

The Modernist

Back to Stretford tram stop.

Dane Road

Turn left out of the tram stop onto Dane Road

Dalton House Cross Street Sale M33 7AR

The building has been refurbished both inside and out and offers flexible floor plates, on-site car parking and a dedicated customer service team to ensure the smooth operation of the building. The ground floor of the building is occupied by two prominent retail units occupied by Majestic Wine and Ducati Motorbikes, with office accommodation on the upper 3 floors.

Manchester Offices

Continue walking along Cross Street.

Sale Pyramid/Odeon 22 Washway Road Sale M33 7QY

Designed by the famous British cinema architectural firm, Drury & Gomersall, the Pyramid Theatre is a classic example of an Egyptian-style cinema in Britain and had a 1,940 seating capacity.

Modern Mooch

The Pyramid Theatre was designated a Grade II Listed building in November 1987.

The circumstances in which the Pyramid at Sale in Cheshire was built were far from simple. The scheme was instigated by local entrepreneur John Buckley, who, having spent £5,000 on the site and commissioned a striking Egyptian‑influenced design from Drury and Gomersall, was not going to be put off from erecting the building by such a minor detail as the refusal of a licence. The refusal was brought about by protests from local churches, the police and rival cinema owners.  The building was ready to open by the start of 1934, but still the local authorities refused to grant Buckley a licence to open his Egyptian dream palace. The disgruntled showman responded by organising a massive publicity campaign and a petition, which eventually garnered 18,853 signatures. This stratagem finally forced the hand of the urban district council, who claimed that they had refused the licence because they had no evidence that another cinema was needed. Now they had no such doubts, the licence was granted.

Architects of Greater Manchester

Further along Washway Road on the corner of Oaklands Drive.

BT Open Reach Telephone Exchange.

The extension of 1966 is by Turner & Benson of Stockport overseen by the Ministry of Works NW.

Further along Washway Road.

Sale Lido 1934-35 Architect: Arthur Edward Lancashire

Opened on 10 July 1935, the Lido complex included a covered swimming pool, 130 feet long; domed solarium with facilities for natural and artificial sunbathing; café/restaurant; and lock-up shops. The pool could be covered over to form a dance floor during the winter months. The front elevation was clad in cream and green faience. In the sixties The Lido was taken over by Mecca and re-named the Locarno Ballroom, later Mecca Bingo since closed.

Architects of Greater Manchester

Back track to Sibson Road – where we find these inter-war homes.

Turn right into Springfield Road where there are further inter-war homes.

Back tracking along Springfield Road to the Stanley Square Car Park.

This sits atop and adjacent to the recently refurbished Stanley Square.

A Simpson Haugh design project

Dine at fan favourites, and remember, good times aren’t just for weekends. Whether you’re after a caffeine fix, bar to prop up or even a pop-up gallery space, we’ll keep you busy any day of the week.

And if shopping’s your bag, we have it all. You’ll find household names rubbing shoulders with indie traders, alongside a curated mix of nail bars, barbers, greengrocers and all sorts in between.

Stanley Square is a unique take on the traditional shopping centre. We’re creating an eclectic destination where a-bit-of-anything goes, and the people are pride of place. You’ll come for the culture, and come back for the community vibe.

Walking back toward Sale tram stop.

Sale Town Hall 1913-15 Architect: Charles Thomas Adshead

The building was hit by a series of German incendiary bombs on the night of 23 December 1940 during the Manchester Blitz, a part of the Second World War: there were no injuries but the building was badly damaged. A programme of restoration works, which included the installation of a new clock tower with cupola, was completed in 1952. 

Brooklands

Turn left onto Marland Road, then left onto Washway Road.

Turning right into The Avenue, where we find at Wincham Road Sale M33 4PL

Avenue Methodist Church 1963 Architects: Halliday and Agate.

Return to and continue along Washway Road turning left into Park Road.

Bridgewater House 90 Park Rd Timperley Altrincham WA14 5BZ

Bridgewater House is an urban village development of 55 luxury apartments in the heart of Timperley.

Continuing along Park Road to Holy Cross Church 2001 – 97 Park Rd Timperley Altrincham WA15 6QG

Architects: Nick Rank and Mark Pearce from the architects firm of Buttress Fuller Alsop and Williams 

Reverse along Park Road to Timperley tram stop.

Altrincham

Turn right out of the station and along Barrington Road, turn right into Grosvenor Road.

Beneath the A56 you will discover this concrete Haçienda Hazards.

Take the wet steps to the right ascending to Woodlands Road.

Where you will find the Altrincham Methodist Church.

Barrington Rd Altrincham WA14 1HF

Continue along Barrington Road to Station House.

Stamford New Rd Altrincham WA14 1EP

Station House is a welcoming workspace in the centre of Altrincham situated adjacent to the Metrolink, rail and bus stations, and is just a couple of minutes walk from the retail amenities of the town centre. It boasts a newly refurbished reception and lounge area which is ideal for collaboration space. The building offers secure car parking, a manned reception and on-site building manager.

Manchester Offices

The Shopping Precinct of 1966-69 Architects: AH Brotherton & Partners.

This has been much reworked including the former Rackhams store, and the precinct rebranded as the Stamford Quarter

Bruntwood and Trafford Council have converted the building into Foundation, a 75,000 sq ft workspace and leisure destination in the town centre.

Place North West

Continue along the road to Ferrious – housed in a former Burton’s.

47-49 Stamford New Road WA14 1DS

With the desire to have a more public face, Ferrious took on the present showroom in 2018 and after extensive restoration the new showroom opened in March 2019. Ferrious is still led by Jeremy and Paul and in 2021 it will be thirty years since they first joined forces. With those thirty years of experience, along with an incredible team of talented Interior Designers who live and breathe design, Ferrious will ensure every part of your experience, either long or short, is professional, enjoyable and filled with exceptional knowledge.

Turn right into Regent Road, then left into New Street, sadly these flats are due for demolition.

To make way for the new apartments and townhouses off New Street, Trafford Housing Trust will have to demolish six 1960s-era apartment blocks. The apartments have structural issues and need new windows and doors.

Place North West

Continue along New Street turn right along the Higher Downs, right again into Woodville Road.

Our destination the BT Open Reach Telephone Exchange.

4 Woodville Road WA14 2AF

Joint Post Office and Ministry of Public Buildings and Works Research and Development Group – JRDG.

The JRDG’s aim for the Altrincham Telephone Exchange, was to ‘design a scheme based on a simple form of construction capable of erection within the ordinary resources of the normal run of building contractors, and entailing the minimum of maintenance and running cost’ [3]. The structural solutions were carefully evaluated with regard to both operational efficiency and the economy of layout and construction. The apparatus room was formed from a light streel frame, a simple timber joist roof and non- loadbearing cavity brick walls. The external walls to the ancillary accommodation were formed of loadbearing cavity brickwork, and the heating chamber and fuel store fitted with a concrete roof as a fire precaution. Continuous windows at high level on all sides of the apparatus room were designed to provide the best daylight conditions and the butterfly roof, designed to lead daylight into the centre of the apparatus room, formed a distinctive architectural feature. 

Lisa Kinch

City Tower – The Renewal of Post-War Manchester

I was invited to the launch or Richard’s book, Richard Brook’s book – The Renewal of Post-War Manchester.

I was invited by Richard Brook to tick off the names of those attending the launch of his book.

The book was launched at the City Tower, part of the Piccadilly Plaza development.

We began at the top – up in the lift to floor twenty eight the Sky Lounge.

On display were the architectural drawings of the Piccadilly Plaza scheme – including my favourite spiral car park ramp.

Back to the ground floor to administer the entrance of exactly eighty eight participants.

Who were subdivide by coloured dot, into sub groups for the forthcoming tour – a tour of the sub basement.

Former home of the diesel boilers – temporary home to eighty eight and a bit Modernists.

A talk or two later and it was almost all over, biggest thanks to Richard, Manchester University Press, The Plaza and the Modernists.

Testament to one man’s healthy preoccupation with Manchester’s modern history and the legion of fellow travellers that have supported and encouraged him down the years.

PS don’t forget to take a look at Richard’s Mainstream Modern.

Ta-ra!